沖縄・宮古島の土地・中古住宅・軍用地の不動産情報を発信中!!  お問合せサイトマップ
 その他沖縄本島物件  ⇒ こっそり本島物件
ご契約頂きました!!(12/30)
【撮影日2008/08/28/AM10:00】

建物前面は、駐車スペース6台

北側:3台駐車可能

物件前の通り

【2階住宅の内部写真】
※建築中におじゃまさせて頂き、内装を一部撮影しました(8/28)

システムキッチン!!

台所からベランダへの出入り口

畳み間の収納スペース

その他の部屋

 

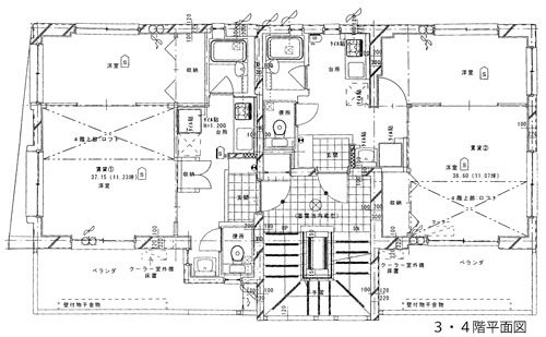
- 平 面 図 -

下記の画像をクリックすると、拡大されます↓

1階平面図

2階平面図

3階平面図

 

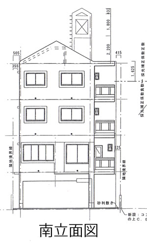
南立面図 東立面図
【北・西立面図】←コチラをクリック
所在地 土地面積 ( u/ 坪) 価格 (坪単価)
那覇市安謝1丁目 152.43u / 46坪 契約済(12/30)
7,980万円

土地権利  所 有 権 地 目  宅地
都市計画  都市計画区域内 用途地域  第1種中高層住居専用地域
建ぺい率  60% 容 積 率  200%
接道状況  南側 幅員9m、北側 幅員4m
引 渡 日  即 日 取引様態  仲介

建物名称  未定 構造・階数  鉄筋コンクリート造/4階建
新築年月  2008年8月末完成 権利形態  所有権
規 模 4階 2K(ロフト付)  42.7u(ロフト部分5.55u)×2室 延床面積  351.54u
3階 2K  37.15u×2室
 2階 3LDK  78.03u
駐車場  9台
年間収入  年間 463万2千円 (月額38万6千円) 年間利回  5.86%
情報公開日  2008/09/05/Fri 最終更新  2008/01/05/Mon

         土地取引の流れ
       ↓ボタンをクリックすると移動できます。「+」「-」で倍率が変わります。
ページトップへ
 
〒901-2133 沖縄県浦添市城間1-8-19-2F  
TEL:098-870-7777 FAX:098-870-7778
 
fudousan@kamiya-pro.jp

Copyright(C) 2005 Kamiya Produce All Rights Reserved.