Top  宮古島物件   こっそり物件・他物件     取引事例    お客様の笑顔    会社概要     スタッフ紹介
 知らなきゃ損!損!  初めて土地を買われる方へ  土地を安く買う方法   (軍用地)取引の流れ  (宅地)取引の流れ

ご契約いただきました(5/21)

                                                  撮影日:2007.04.19 PM12:00
売地は、新都心 那覇国際高校近く。
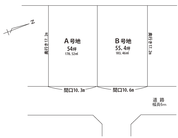
A号地54坪 B号地55.4坪、2区画分譲地。

売主は当社(カミヤプロデュース)となっています。
その為、仲介手数料は発生しません。

間口10mと区画整理地内でも間口広く、住宅用地として手頃な54坪と55坪の土地です。
坪数の調整可能ですし、また、2区画まとめて購入も可能です。
南向きで日当り良好♪閑静な住宅街の中です。
  ↑ 動画配信中 
再生されない場合は、Windows Media Player をダウンロードされて下さい。

                                                   撮影日:2007.04.19 PM12:00

                                                  撮影日:2007.04.19 PM12:00

                                                    撮影日:2007.04.19 PM12:00

                           撮影日:2007.04.19 PM12:00

                                           撮影日:2007.04.19 PM12:00

ご契約いただきました(5/21)
所在地 土地面積 ( u/ 坪) 価格 (坪単価)
那覇市安謝1丁目
※坪数の調整可能です
契約済み A号地 178.52u / 54坪 3,132万円(坪58万)
契約済み B号地 183.46u / 55.4坪 3,213万円(坪58万)
■権利:所有権  ■地目:宅地  ■都市計画:市街化区域  ■用途地域:第1種低層 
■建ぺい率 50% 容積率 150%  
■地形:平坦  ■環境:住宅用地  ■現況:更地  ■引渡:即日  ■接道方向:南東6m
■接道状況:一方道路   ■学校校区:安謝小学校 安岡中学校 
■取引形態:売主
(仲介手数料は発生しません)
■備考:公図・謄本・測量図有り
     面積(坪数)の調整は可能です。
         土地取引の流れ
(情報公開日2007/4/25/Thu)
(最終更新2007/5/21/Mon)
矢印」の場所が売地です
■ 周辺環境 ■
りうぼう楽市(徒歩10分) 那覇国際高等学校(徒歩5分)
あっぷるタウン(徒歩10分) サンエーメインプレス(車で5分)
ページトップへ


お電話でのお問合せはこちら → 098-870-7777(神谷)

〒901-2133 沖縄県浦添市城間1-8-19-2F  
 TEL:098-870-7777 FAX:098-870-7778
 
fudousan@kamiya-pro.jp

Copyright(C) 2005 Kamiya Produce All Rights Reserved.